店舗の内装の設計・デザイン・施工。賃貸・中古住宅・マンションのリノベーションや高齢者向け介護住宅へリフォームならおまかせ。
28.【住宅】リノベーション
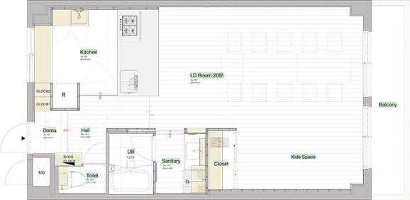
設計コンセプト
住居兼食関係のクリエイティブ物件としてキッチンを最大限に利用できる空間です。
調理、撮影、レッスン等にも対応できる様に設備、収納共に充実させております。
スタジオ感を出す為、天井をスケルトンにしてスポットを多用しています。
施工写真
賃貸・中古住宅リフォーム・店舗デザインの株式会社クイックベンリー
HOME
会社概要
施工事例
ブログ
求人情報
株式会社クイックベンリー
〒216-0044
川崎市宮前区西野川3-13-39
TEL:044-754-7882
FAX:044-572-6476
調理、撮影、レッスン等にも対応できる様に設備、収納共に充実させております。
スタジオ感を出す為、天井をスケルトンにしてスポットを多用しています。