店舗の内装の設計・デザイン・施工。賃貸・中古住宅・マンションのリノベーションや高齢者向け介護住宅へリフォームならおまかせ。
29.【店舗】美容院 新装
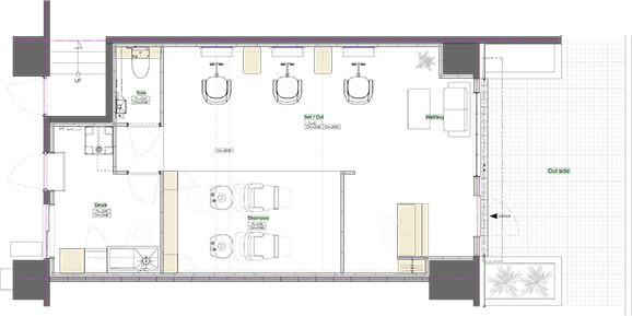
設計コンセプト
天井をスケルトンにして空間を縦に広げ、剥き出したRCと同調するインダストリアルな内装としました。
外装はモノトーンにドアのみヴィンテージ風の青塗装でワンポイントをつけました。
施工写真
賃貸・中古住宅リフォーム・店舗デザインの株式会社クイックベンリー
HOME
会社概要
施工事例
ブログ
求人情報
株式会社クイックベンリー
〒216-0044
川崎市宮前区西野川3-13-39
TEL:044-754-7882
FAX:044-572-6476
外装はモノトーンにドアのみヴィンテージ風の青塗装でワンポイントをつけました。